04 68 46 14 95
06 34 68 03 79
43 Rue Voltaire 11210 Port-La-Nouvelle

Confortable Villa T5 de plain-pied en trois faces


< Retour

Partager sur

gallery loader

Villa 109 m² - 5 Pièces - Port-La-Nouvelle 310 000


Description de l'offre Ref 719


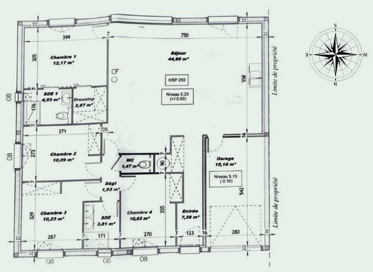
Stpo affaire !! Sous garantie décennale jusqu'en juin 2027, confortable villa T5 de plain-pied de 109m² en trois faces sur 427m² de terrain avec garage. Elle comprend : Un hall d'entrée desservant une spacieuse et lumineuse pièce de vie (séjour cuisine salon de 45m² plein Sud) ouvrant sur un jardin de 113m² avec sa terrasse de 41m², 4 chambres avec rangements dont une suite parentale de 19m², 2 salle d'eau, deux wc et un garage de 15m². Prestations : 3 faces, vide sanitaire (1.40m), murs en briques creuses donnant sur l'extérieur et combles isolés, menuiseries métalliques et pvc double vitrage, volets roulants électriques alu, climatisation réversible gainable, chauffe-eau thermodynamique à accumulation 300 L, Vmc Hygro B, pergola bioclimatique (fermeture des lames orientables en cas de pluie), cabanon de jardin, gazon synthétique, terrasse en béton imprimé, périphérie de la maison en béton désactivé, 2 points d'eau extérieurs, clôtures en dur à 1.80m de haut à crépir, fibre installée. DPE : A / GES : A. 310 000 € HAI !!!!! Affaire à saisir vite !!

Diagnostics de performance énergétique


DPE
DPE

Montant estimé des dépenses annuelles d'énergie pour un usage standard est compris entre 444 € et 600 € . Prix moyens des énergies indexés sur les années 2021, 2022 et 2023 (abonnements compris).

Descriptif du bien


Code postal 11210


Surface habitable (m²) 109 m²


surface terrain 427 m²


Surface loi Carrez (m²) 108,90 m²


Nombre de chambre(s) 4


Nombre de pièces 5


Vue Verte et citadine


Nb de salle d'eau 2


Cuisine AMERICAINE


Type de cuisine SEMI-EQUIPEE


Mode de chauffage Climatisation


Type de chauffage Air pulsé


Format de chauffage Central


Terrasse OUI


Murs mitoyens 1


Nombre de garage 1


Nombre de parking 2


Exposition NORD-SUD


Année de construction 2017


Quartier 1 km du centre-ville, 2.5 Km de la plage, Résidentiel


Terrain piscinable OUI


Terrain arboré NON


Copropriété OUI


Prix de vente honoraires TTC inclus 310 000 €


Prix de vente honoraires TTC exclus 300 000 €


Honoraires TTC à la charge acquéreur 3,33 %


Taxe foncière annuelle 1 933 €


Cette annonce vous intéresse ?


* Champs obligatoires

* : Les informations recueillies sur ce formulaire sont enregistrées dans un fichier informatisé par La Boite Immo agissant comme Sous-traitant du traitement pour la gestion de la clientèle/prospects de l'Agence / du Réseau qui reste Responsable du Traitement de vos Données personnelles. La base légale du traitement repose sur l'intérêt légitime de l'Agence / du Réseau. Elles sont conservées jusqu'à demande de suppression et sont destinées à l'Agence / au Réseau. Conformément à la loi « informatique et libertés », vous disposez des droits d’accès, de rectification, d’effacement, d’opposition, de limitation et de portabilité de vos données. Vous pouvez retirer votre consentement à tout moment en contactant directement l’Agence / Le Réseau. Consultez le site https://cnil.fr/fr pour plus d’informations sur vos droits. Si vous estimez, après avoir contacté l'Agence / le Réseau, que vos droits « Informatique et Libertés » ne sont pas respectés, vous pouvez adresser une réclamation à la CNIL. Nous vous informons de l’existence de la liste d'opposition au démarchage téléphonique « Bloctel », sur laquelle vous pouvez vous inscrire ici : https://www.bloctel.gouv.fr Dans le cadre de la protection des Données personnelles, nous vous invitons à ne pas inscrire de Données sensibles dans le champ de saisie libre.
Ce site est protégé par reCAPTCHA, les Politiques de Confidentialité et les Conditions d'Utilisation de Google s'appliquent.

autres annonces immobilières correspondant à votre recherche

Les biens similaires pour : Vente Villa Port-la-Nouvelle (11210)